
Uso del producto: Este producto está diseñado para la producción de petróleo mediante gas.
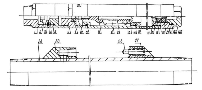
Estructura: Como se muestra en la figura, el dispositivo de gas consta de dos partes principales: la válvula de gas (elementos 1-23) y el cilindro de trabajo fijo (elementos 24-27).
Principio de funcionamiento
El gas a alta presión ingresa a la válvula de elevación por gas desde el espacio anular de la tubería y el revestimiento, a través del orificio lateral del cuerpo inferior de la válvula, elemento 6. Cuando la presión del gas supera la presión requerida del gas nitrógeno que actúa sobre su área efectiva dentro del fuelle, el cabezal de la válvula 8 desciende. El gas abre la válvula de flujo simple 2 desde los orificios internos de las piezas 4 y 6 y entra en la tubería a través del orificio lateral de la junta de la tubería 24. Una vez que el gas a alta presión ingresa a la tubería, puede extraer el líquido del suelo según sea necesario, logrando así el propósito de la producción de petróleo mediante elevación por gas. La válvula de elevación por gas se instala en el exterior de la sarta de tubería. Para ajustar los parámetros de trabajo de la válvula de elevación por gas, se deben extraer las tuberías.
Parámetros técnicos:
Presión de trabajo | Gas lift valve OD | Tubing pup joint Connection thread |
25MPa | 25mm | 2-7/8TBG |
DIRECCIÓN:Habitación 616, Fortune Plaza, Yungang Road, Zona Económica de Aviación
Teléfono:+86 156 1779 7655
Teléfono:+86 371 85304855